Ровные штробы • Аккуратная укладка кабеля • Сборка щита по ГОСТ
Проект по ПУЭ
Проектирование по нормам ПУЭ и ГОСТ
Ровные штробы
Аккуратная прокладка кабельных трасс
Щит по ГОСТ
Профессиональная сборка электрощитов
Электромонтаж под ключ в Санкт-Петербурге
Профессиональный электромонтаж с гарантией качества и соблюдением ПУЭ. Работаем в Санкт-Петербурге и в радиусе 90 км от города.

Проект электроснабжения частного дома в Санкт-Петербурге
Проект электроснабжения частного дома и коттеджа в СПб и ЛО. Однолинейная схема, расчёт нагрузок по фазам, схема электрощита, кабельный журнал. Проектирование электрики по ПУЭ и ГОСТ.
- ✓Однолинейная схема электроснабжения
- ✓Расчёт нагрузок по фазам
- ✓Схема электрощита

Электромонтаж частных домов под ключ в Санкт-Петербурге
Электромонтаж частных домов под ключ в Санкт-Петербурге и ЛО. Разводка электрики, монтаж электропроводки, схема электропроводки, сборка щитов с УЗО. Подключение к электросетям. Работаем по ПУЭ и ГОСТ, с гарантией.
- ✓Гарантия 2 года
- ✓Работа по ПУЭ и ГОСТ
- ✓Схема электропроводки перед монтажом
Электромонтаж в домах из бревна и клеёного бруса под ключ
Выполняем полный комплекс электромонтажных работ в деревянных домах — от проектирования до пусконаладки. Работаем с домами из оцилиндрованного и рубленого бревна, профилированного и клеёного бруса. Знаем специфику дерева и требования ПУЭ к горючим конструкциям.
- ✓Особенности работы с деревом Дерево — горючий материал (группа Г4). Мы соблюдаем требования ПУЭ: скрытая проводка только в металлических трубах и рукавах
- ✓металлические подрозетники
- ✓негорючий кабель ВВГнг-LS. Учитываем усадку дома — оставляем компенсационные петли на кабелях

Умный дом на Wirenboard под ключ в Санкт-Петербурге
Установка умного дома на контроллере Wirenboard под ключ в СПб и ЛО. Автоматизация дома: управление отоплением, освещением, шторами, вентиляцией. Интеграция с Алисой и Home Assistant. Проектирование, монтаж, настройка.
- ✓Контроллер Wirenboard
- ✓Управление отоплением
- ✓Автоматизация освещения
Проект умного дома и квартиры на Wirenboard в Санкт-Петербурге
Проект умного дома и квартиры на Wirenboard в СПб и ЛО. Схема автоматизации, сценарии освещения и отопления, подбор оборудования. Интеграция с Алисой и Home Assistant. Проектирование под ключ.
- ✓Контроллер Wirenboard
- ✓Схема умного дома
- ✓Сценарии автоматизации

Электрика в квартире под ключ в Санкт-Петербурге
Электрика в квартире под ключ в СПб. Замена проводки, разводка электрики, сборка электрощита с УЗО. Электромонтажные работы в новостройках и вторичке. Работаем по ПУЭ и ГОСТ, с гарантией.
- ✓Гарантия 2 года
- ✓Работа по ПУЭ и ГОСТ
- ✓Замена проводки под ключ
Выполнение технических условий и монтаж щита учёта на опоре в СПб и ЛО
Выполнение технических условий на подключение к электросетям в СПб и ЛО. Монтаж щита учёта на опоре, установка счётчика, ввод электричества в дом. Щиты 15 кВт однофазные и трёхфазные.
- ✓Выполнение технических условий
- ✓Монтаж щита учёта на опоре
- ✓Щит учёта 15 кВт
Не нашли нужную услугу?
Мы выполняем любые электромонтажные работы в Санкт-Петербурге и области. Получите бесплатную консультацию и персональное предложение.
Ход выполнения работ
Следите за прогрессом наших проектов в режиме реального времени
Наши проекты
Пока нет проектов для отображения
Выберите проект из списка слева
Пока нет проектов для отображения
Портфолио электромонтажных работ
Более 500 выполненных проектов в Санкт-Петербурге и Ленинградской области. От квартир до коттеджей с системой умного дома Wiren Board.

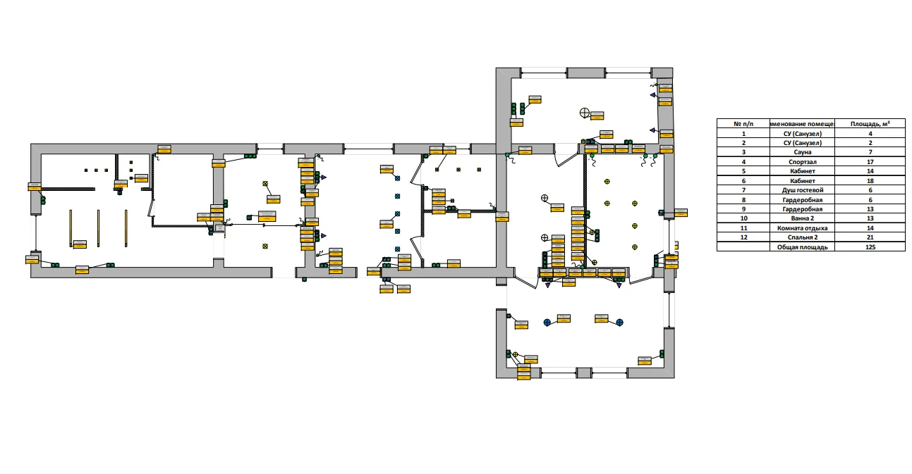
Электромонтаж частного дома 360 кв метров
Выполнили полный электромонтаж загородного дома площадью 360 м² — от проектирования до сборки щитов. Проект Перед началом работ подготовили полноценный проект: расстановку розеток и выключателей, трассировку кабельных линий, монтажные схемы для каждого этажа и схему сборки щита. Монтаж Проштробили 700 метров кабельных трасс и установили 150 подрозетников. Общий расход кабеля составил 4 300 метров. Особенность объекта — небольшие пороги, что потребовало тщательного планирования прокладки. Помимо внутренней разводки, проложили линии питания к кондиционерам, септику, домофону и откатным воротам, а также выполнили подготовку под ландшафтное освещение участка. Щиты Собрали силовой распределительный щит на 180 модулей с полной защитой и удобным управлением всеми группами потребителей. Отдельно собрали слаботочные щиты на базе контроллеров Wirenboard с диммерами WB-LED — подготовка под систему «умный дом» с управлением освещением.

Электромонтаж квартира ЖК Светлана парк
Выполнен электромонтаж в квартире площадью 85 м². Смонтировано 1100 м кабеля. В проекте предусмотрено два слаботочных щита и 14 блоков питания. Все блоки питания размещены централизованно в слаботочном шкафу — решение более дорогое по сравнению с локальными БП, но даёт удобство обслуживания, упрощает диагностику и обеспечивает порядок в системе. Реализован температурный контроль слаботочного шкафа: при перегреве блоков питания подсветка автоматически уходит в аварийный режим, питание на шкаф отключается до нормализации температуры. На практике система аварии не допускает, но механизм защиты встроен и полностью рабочий.

Умная подсветка участка на wirenboard
Умная подсветка лестницы на Wiren Board с гибкой логикой в Node-RED. Поддерживает четыре режима: ручной (100%), автоматический по датчикам движения с регулировкой яркости по освещённости, режим по расписанию и полное отключение. Реализованы тайм-ауты, плавный димминг 0–10 В, контроль направления движения по двум датчикам, а также интеграция с HomeKit и Яндекс.Алисой.

Частный дом 240 квадратных метров
Выполнил полный электромонтаж в частном доме площадью 240 м². По проекту реализована разводка силовых и слаботочных линий, суммарно уложено около 3 км кабеля. Это один из первых объектов, где применялось полноценное проектирование перед монтажом — благодаря этому удалось оптимизировать трассы, сократить перерасход материалов и повысить качество исполнения. Результат — чистая, структурированная электрика с предсказуемой логикой работы всех групп.

Электромонтаж квартиры 110 м² под ключ
Выполнили полный электромонтаж под ключ по дизайн-проекту в квартире 110 м² (тариф «Оптимальный»). Проложили 1050 м кабеля по полу – под вторым деревянным слоем фальшпола в доме 1893 года. Собрали и установили щит(ы) ABB, вся автоматика – ABB. Поставили счётчик с автоматической передачей показаний в УК. Смонтированы розетки, выключатели и люстры. Работы выполнены аккуратно, безопасно и готовы к отделке.

Монтаж заземления в частном доме
Выполнили монтаж контура заземления – 12,5 м. Первый комплект дал сопротивление более 50 Ом (не соответствует ПУЭ), поэтому усилили контур: добавили 3 штыря по 1,5 м и повторно замерили. Итог – 20 Ом: норматив выполнен, контур стабилен и готов к подключению. Работа выполнена по ПУЭ, при необходимости предоставим акт измерений.
Хотите, чтобы ваш проект стал следующим в нашем портфолио?
Отзывы клиентов о SPB ELECTRO
Реальные мнения заказчиков о нашей работе
Калькулятор электромонтажа
Рассчитайте примерную стоимость электромонтажных работ для вашего объекта. Укажите параметры и получите ориентировочную смету.
Часто задаваемые вопросы
Найдите ответы на популярные вопросы о наших услугах
Не нашли ответа на свой вопрос?
Оставьте заявку, и наш специалист свяжется с вами в течение 15 минут
Контакты электрика в СПб
Мы всегда готовы ответить на ваши вопросы и помочь с выбором оптимального решения для вашего проекта
Бесплатная консультация
Получите профессиональную консультацию по вашему проекту. Наши специалисты ответят на все вопросы и помогут выбрать оптимальное решение.
Выезд на объект
Наши специалисты выезжают на объект для оценки работ и консультации